Ein schönes Zuhause auf der Durchreise.
Grosserweiterung um 40 Zimmer, Seminarraum & Gastronomie.
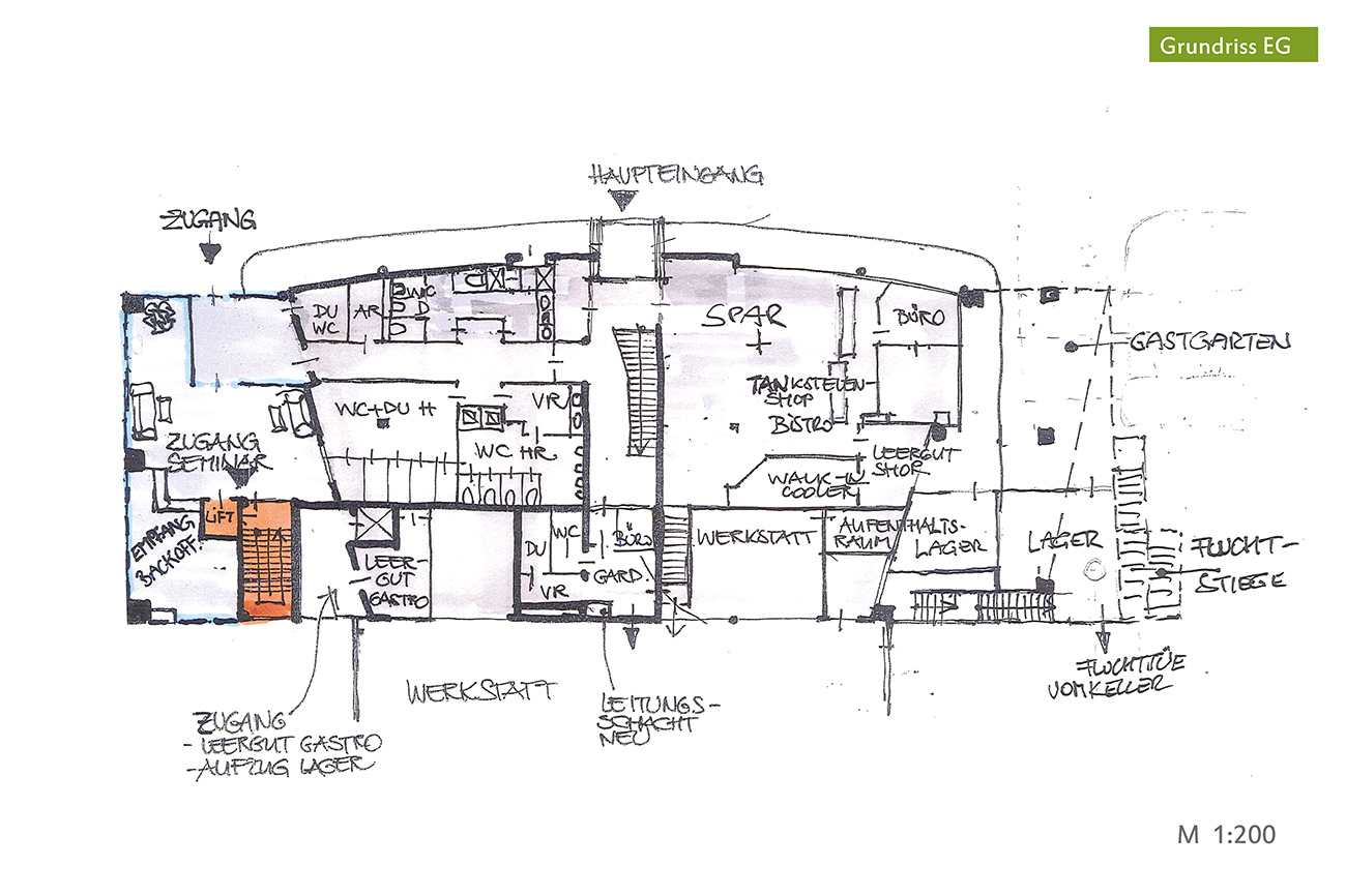
In dieser Konzeptstudie haben wir das Thema Raststation aufgegriffen. Auch hier hat man bauliche Aspekte die zu berücksichtigen sind wie z.B. die Integration des Hotels in die ansonsten öffentlichen Bereiche der Raststation. Moderne Fassade und Interieur sorgen für eine angenehme Nacht und eine noch bessere Weiterfahrt.