Fertighotel Portfolio

Konzeptstudie Nähe München

Schnitte

Es wird geplant und entwickelt

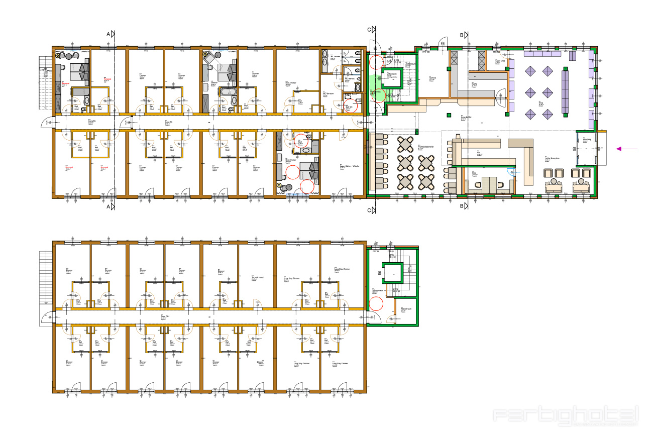
In der Nähe von München ist die Errichtung eines neuen Hotels geplant. Dieses soll der Nachfrage in der Region gerecht werden und ein charmantes Nächtigungsangebot in Zukunft bieten.