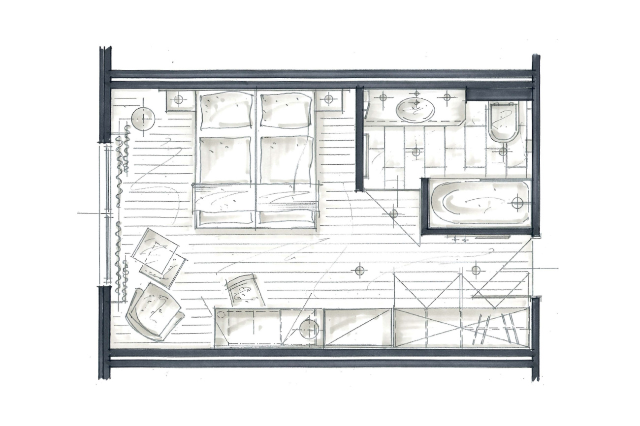
An der Grenze zum Weinviertel umgeben von Wäldern befindet sich dieses Projekt. Der bestehende Golfplatz soll durch hochwertige Nächtigungsmöglichkeiten erweitert werden.
Cookies erleichtern die Bereitstellung unserer Dienste. Mit der Nutzung unserer Dienste erklären Sie sich damit einverstanden, dass wir Cookies verwenden.Weitere Informationen