Fertighotel Portfolio

Konzeptstudie am Hochkönig

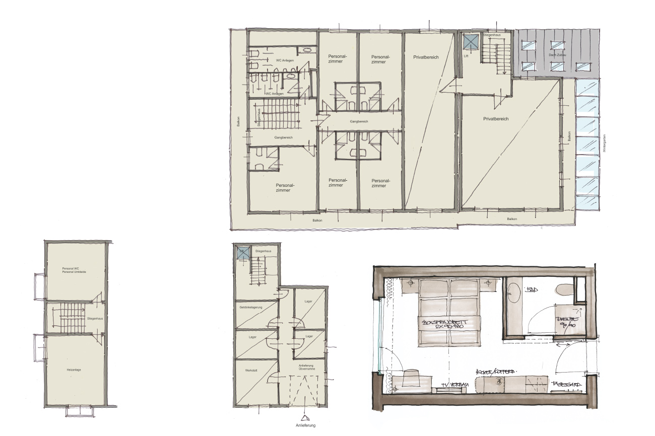
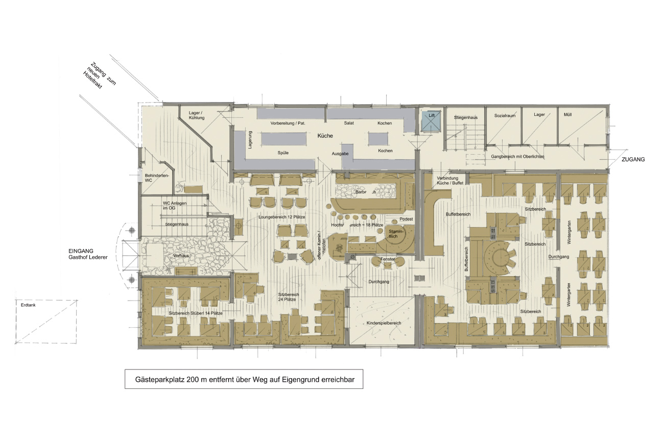
Gebäudeaufteilung

Bei diesem Projekt  war besonders die geologische Lage interessant und herausfordernd.

Über vier Etagen in einen Hang hinein gebaut ist dies durchaus eine interessante Angelegenheit. Besonders mit der baulichen Verbindung zu dem  Altbestand schufen wir eine architektonisch ansprechende Lösung. Der Ausblick kann sich sehen lassen.